Az ár az alsó szekrényt mosdóval és a felső szekrényt tartalmazza.
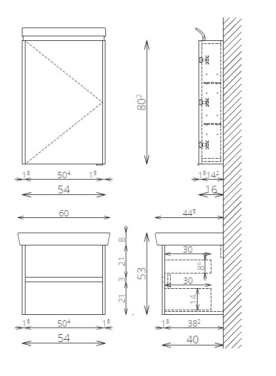
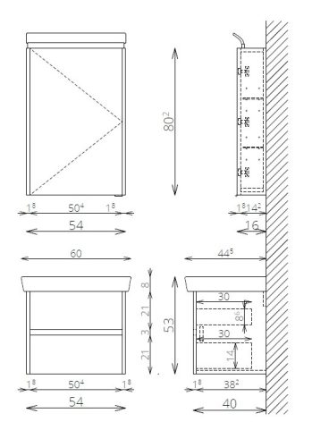
Alsó szekrény
Méret: 60x53x45 cm
2 fiókos
Fali rögzítéssel
Korpusz és front: vákuumpréselt MDF front és oldalak, laminált lapok
Mosdótál: kerámia - Roca
Fogantyú: szálcsiszolt alu bemart fogantyú
Vasalatok: tandembox, teljes kihúzású, csillapított záródású önbehúzó vasalatok (Terhelhetőség: 30 kg)
A kép extra dolgokat is tartalmazhat, azok külön rendelhetők!
Ajándék: 2 db Mara törölközőtartó és 1 db fiókrendező
Felső szekrény: Mirror Box Cut 55
Méret: 54x80x16 cm
Korpusz és front: vákuumpréselt MDF oldalak és laminált lapok
Vasalatok: csillapított záródású pántok
Világítás: 1 db 55 cm-es LED lámpával
Integrált világítás
Powerbox (1 dugalj 1 kapcsoló) jobb oldalt belül
Üvegpolc
Belső világítás
Piperetükör jobb oldalon
Mérsékelten vízálló
Összeszerelve szállítjuk
Színválaszték: magasfényű fehér, szupermatt fehér, lágy krém matt, matt kasmír, kőszürke matt, antracit, matt fekete, matt nádzöld, füstös zöld matt, matt indigókék, sonoma, natúr tölgy, dohány tölgy, tuja, loft beton, grafit fa, szilva, mokka
Kérjük, hogy rendeléskor a választott színt a megjegyzésben feltünteni szíveskedjen!